Exposure
The extension of the so-called Juwelbox House in London
Siltation of some houses based on different designs. Sometimes things are used, which we expect always look forward they will work in a home toilet. Imagine a house before, which is a compilation of several boxes inside a jewel. Us new ideas to have a very clear idea, because we know this building! He was also named accordingly: Juwelbox House in London, England. It includes the renovation and extension of a house that achieves the integration of a dining room and conservatory. The whole thing was designed by architect Fraher. Themselves describe the concept. According to their terms, all began as a series of boxes, which are carefully integrated into the existing framework. Wood and concrete were combined. They consist of a simple palette of materials. Thus, the whole structure was wrapped. By their attractive kind they cause the guests will feel immediately addressed by the idea of entering the garden. Elements from different eras have been preserved. The roof double-edged use of additives used unusual wildflowers. This was done to ensure the penetration of light in the depth of the roof. Very interesting, no? Are you interested in this virtual tour of this extension of the house around? If yes, then scroll down and look at the jewels of its unique design! This is a simple extension. But the region has been very well designed. They brought this sliding wooden structure used
In addition to displaying the dining room also built a study room in a glass structure
The extension of the house leads to a garden where guests and family can enjoy the outdoor space
A mud house was great need to keep the house clean in this case. The heels of color make a great addition to the room is
The ceiling of the interior also shows a beautiful design. sky lights are also included
Not only is the ceiling in general, but also the lights themselves are very interesting because they provide more creativity in the house
The steps here lead to the study area and can be illuminated at night by lights
In this space, we see a bedroom. It was equipped with cupboards and the bed can be used in part as a seating area
Here you can see new cabinets, we talked. They were commissioned to conduct a little light. So you can do without the nightstand
Here you have an elegant kitchen sink. It is characterized by the design of modern faucet
Here is a look at the garden, where everyone can relax
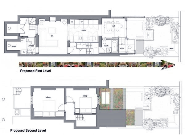
Now you are the floor plans of the house
Here we see the plan, which also includes the proposed extension with
This diagram shows the Juwelboxkonzept home
In this context, there is also a hidden study in the garden. In addition, efforts have been made to build sustainable by having incorporated a number of green blankets. This provides good insulation and offers enough space for wildlife who wants to develop here.










