Elegant Villa – Seaview House Torquay, Australia
Seaview House is a project where the rural smell mixed with the breeze of the sea. The exquisite house in Barwon Heads, Australia by Jackson Clements Burrows was konzipert and was designed as a retreat by the sea. Subsequently, he evolved and expanded into a permanent home.
Country-style house and a charming seaside retreat
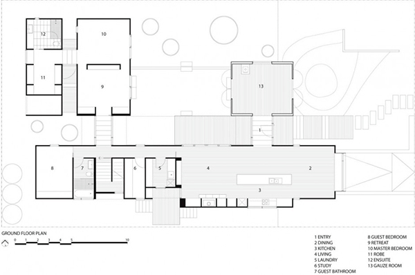
View Seaview House is unique in terms of architecture, it has a structure of postwar beach with rustic details. The rooms are divided into three pavilions are connected by glazing compounds. "The design of the house has been carefully designed so that it takes into account the lifestyle of the customer and stages of their lives." The house is surrounded by nature
Further to the House overlooking the sea review reminds us authentic American barns. The pavilions are headed south, northwest and northeast. The south pavilion offers an open living room, with a long hallway. The main material of Seaview House is wood. Everything here is simple – decorations of the structure. The space is airy and comfortable, which gives us a special feeling of relaxation, something we seek -. In the privacy of our time relaxing in the house yard
Made entirely of wood inside
Simple, airy atmosphere in the dining room
Modern kitchen with integrated kitchen cabinets
kitchen island and a large workspace, comfortable
Wooden wall and integrated Fireplace
Enjoy the end of the day on the porch
Fantastic resort
Airy structure of the building
Architecturally 











